国産木造住宅ブランドKOTT「小さく豊かに住む平屋 -コアハウス- 」を販売開始。900万円代より(税抜本体価格)。
株式会社 日本の森と家(本社:東京都立川市、代表取締役:栁田英樹、以下日本の森と家)が展開する住宅ブランドKOTTは、7月5日(木)に、既に販売している「KURA NINE(クラナイン)」「KURA LOFT(クラロフト)」に続く第3の商品として「小さく豊かに住む平屋 -コアハウス- 」の販売を開始します。900万円代より(税抜本体価格)。
株式会社 日本の森と家(本社:東京都立川市、代表取締役:栁田英樹、以下日本の森と家)が展開する住宅ブランドKOTTは、7月5日(木)に、既に販売している「KURA NINE(クラナイン)」「KURA LOFT(クラロフト)」に続く第3の商品として「コアハウス 」の販売を開始します。
コアハウスは、東日本大震災における建築家による復興支援ネットワーク(アーキエイド)によって計画された住宅です。住民との対話から、復興において当初漁業に多くの資金を要する事から、最初は小さく建てて徐々に増築するコアハウスが開発されました。今回、アーキエイドのメンバーとして、コアハウスに携わってきたアトリエ・ワンと販売契約を締結し、KOTTが販売施工を開始することとなりました。
KOTTでは近年の住宅市場を取り巻く社会的背景を考慮し、地域復興を目的として開発されたコアハウスを、自社商品基準である耐震等級3(最高等級)、断熱等級4(最高等級)に改良し、関東を中心に販売・施工を開始します。また、コアハウスの売上の一部は、宮城県牡鹿半島の復興を目的として寄付いたします。
コアハウス販売に至る社会的背景
・少子高齢化による平屋住宅需要の増加
・他拠点居住等の働き方住まい方の多様化
・国産材を使用した住宅需要の増加
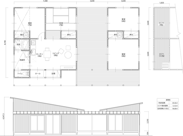
構造/構法 :木造在来板倉工法
階数 :平屋建て+ロフト
間取りタイプ:1R・1LDK・2LDK・4LDK
面積 :38.91㎡(11.77坪)~96.88㎡(29.30坪)ロフト含む
販売価格 :900万円代~(税抜本体価格)
基本スペック:耐震等級3 次世代省エネ基準4等級(UA値0.66(4地域対応))
コアハウスの特徴
板倉工法
通常の木造住宅の2〜3倍の木材を使う「板倉工法」を採用した国産材の家です。
住まい手への配慮
板倉工法による杉板を活かし、暖かみがあると同時に、ライフタイルに合わせて自由に変更できる余地をのこしています。
環境に優しく、小さく住む。
これから日本に来る超高齢化社会、多様な働き方住まい方のニーズに応え、小さく豊かに住むことをコンセプトにした住宅です。
4つのコアハウス
コアハウス 1R:税抜本体価格900万円代より
コアハウス 1LDK:税抜本体価格1,200万円代より
コアハウス 2LDK 価格:現在積算中
コアハウス 4LDK 価格:現在積算中
株式会社日本の森と家は、森と都市の循環を促す住宅商品の開発と販売をするハウスメーカーです。つくることによって地域や社会とつながることができる家。そして、買って終わりの消費される家ではなく、住んでからも手をかけながら愛着を持って永く住み続けられる家。単なる住宅提供におわるのではなく、森や都市、地域や暮らしの持続につながる大きな循環をつくり、その社会的な意義に寄与するハウスメーカーを目指していきます。
<株式会社 日本の森と家 概要>
名称 :株式会社 日本の森と家
所在地 :〒190-0033 東京都立川市一番町一丁目2番
代表者 :代表取締役社長 栁田英樹
事業内容:森と都市の循環を促す住宅商品の開発と販売
資本金 :2億円(資本金100百万円、資本準備金100百万円)
設立年月:2016年4月
登録 :[建設業許可番号] 東京都知事 許可(特-28)第146000号
<リリースに関するお問い合わせ先>
株式会社 日本の森と家
Mail: info@moritoie.jp
ログインするとメディアの方限定で公開されている
お問い合わせ先や情報がご覧いただけます
添付画像・資料
添付画像をまとめてダウンロード
企業情報
| 企業名 | 株式会社日本の森と家 |
|---|---|
| 代表者名 | 栁田 英樹 |
| 業種 | 建築 |
コラム
株式会社日本の森と家の
関連プレスリリース
-
2017年10月7日(土)「KOTT(コット) 東京の森 立川展示場」をオープン!10月7日〜9日の3日間、オープニングイベントを開催!
2017年10月2日 15時
-
株式会社「日本の森と家」。ハウスメーカー初の「板倉工法」を採用した、鎌倉宿泊型モデルハウス完成メディア発表会のご案内。
2017年1月31日 15時
-
株式会社「日本の森と家」写真集 KOTT(コット)を発売。気鋭の写真家6人がそれぞれの視点で「日本の家」を形作っているものの源流を撮影。
2017年1月25日 17時
-
株式会社「日本の森と家」、ブランド名「KOTT」を発表。2016年11月より2商品の予約販売開始。
2016年10月31日 15時
株式会社日本の森と家の
関連プレスリリースをもっと見る



