【9/15までの期間限定募集】ゲイの高齢者住宅オーナー募集
温泉地近くにゲイ仲間と一緒に過ごす老後にご興味ありませんか? 今回、当社アライアンサーズ株式会社の提携会社様が所有するコテージ形式のホテルが売却されることになりました。利活用例として、ゲイの高齢者住宅等を運営するオーナー様を募集します。
温泉地近くにゲイ仲間と一緒に過ごす老後にご興味ありませんか?
今回、当社アライアンサーズ株式会社の提携会社様が所有するコテージ形式(各室建物独立式)のホテルが売却されることになりました。
日光や鬼怒川温泉、那須塩原も近い地域です。
ゲイの高齢者住宅等に活用していただくことで、高齢ゲイ仲間と一緒に暮らしたいと考えているオーナー様を募集します。
「寂しい老後は送りたくない!」「ゲイ同士、気心の知れた人に近くにいて欲しい」
「愛する彼氏(同性パートナー)と一緒に住みたい」そう考える50代以降の高齢ゲイは少なくありません。
そのような方々の老後の夢を叶えることに少しでもご興味があれば、お声がけください。
【資金回収計画(案)】
1室5万円の賃貸料金設定で 12室を満室にした場合
1ヶ月収入5万円かける12室=60万円
※年間売上700万円以上も可能です。
2年間で初期費用回収も可能です。
また高齢者を中心の住宅であるために、長期契約が想定されます。
15年間運営した場合、1億円以上の売上も可能です。
温泉地が近く、東京にも新幹線ですぐに帰ることが出来る土地で余生を過ごしてみませんか?
※別に徒歩10分ほどの距離に温泉(日帰り入浴500円程度)あり
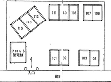
【物件概要】

〇物件所在地 栃木県塩谷郡区域
〇土地建物購入費 980万円
〇導入コンサルティング費 初期200万円
※希望に応じ、月額顧問契約で運営支援制度あり
〇土地情報 実測 1,356㎡(410.19坪)
公募594㎡(179.68坪)
〇1室面積 68.04㎡
〇部屋数 12室(別途管理棟あり)
〇駐車場 各室1台駐車可能
(別途5台の駐車場スペースあり)
【ゲイの老後 Q&A】
Q1.ゲイの高齢者はどのような生活をしている人が多いですか?またどのような需要がありますか?
A1.老後の住替え先を探している人や孤独や孤立から人と一緒に住みたいとお考えの方は多くいます。近所で見守り機能がをつけて、病気や老人ホーム入居が必要な場合の道筋がつく住宅の提供が必要です。
Q2.アライアンサーズ株式会社からはどのような支援がありますか?
A2.入院時や老人ホーム入居時に必要な身元保証人対応(家族代行)や見守り支援などを
行っています。本企画とセットで提携ご支援することも歓迎です。
Q3.友人に一部屋単位で再販売することは可能ですか?
A3.勿論可能です。1室300万円程で販売するなどお勧めです。
Q4.入居対象者はどのような方がお勧めですか?
A4.オーナー様の自由ですのでご自由にご活用ください。ひとり暮らしが寂しいと感じる方や、ゲイ同士での生活に興味のある方を中心に募集されてはいかがでしょうか。
Q5.増設などは必要ですか?
A5.必須ではありませんが、皆様で食事をする調理スペース、洗濯スペース、バーベキュースペースや娯楽室などを用意すると良いかと思います。
Q6.周辺の観光地までのアクセスを教えてください。
A6.日光まで車で30分、那須塩原温泉まで車で40分です。
Q7.彼氏(同性パートナー)と一緒に住むことは出来ますか?
A7.オーナー様がご自由に設定されると良いかともいます。当方としては、是非彼氏さんと一緒に住める住宅になればと考えています。
Q8.近場に温泉地はありますか?
A8.徒歩10分程度の場所にあります。
【ご契約の流れ】
①当社担当者とご面談(オンライン)
②現地ご案内(不動産会社対応)
③契約手続
④営業開始
【お問い合わせ先】
企業名:アライアンサーズ株式会社
担当者名:久保
TEL:03-6260-8637
問い合わせフォーム:https://alliancersjp.com/contact/
<参考動画>
「ゲイの老後は横浜で」家賃を抑えて不安軽減、老後生活の新たな選択肢
※本件は横浜で既に始まっている事例です。ご参考までに動画の視聴とチャンネル登録をお願いします。
<参考記事>
「ゲイにはゲイ特有の老後の問題がある」ゲイ向け老人ホーム実現への道のりとは
https://kaigo.homes.co.jp/tayorini/minority/007/
【物件見本画像あり】「ゲイの老後は横浜で」家賃を抑えて孤独を解消する老後準備の第一歩
https://zioclub.info/alliancers_007/
独身中高年ゲイの基礎知識・入院する時の「身元保証人」サービスが全国展開へ!
https://zioclub.info/alliancers_006/
【メゾン・ド・ヒミコを彷彿】最期まで、仲間に囲まれた豊かなゲイライフを。立川にゲイフレンドリー高齢者向け住宅がオープン予定!
https://the-new-tokyo.com/alliancers/
【会社概要】
会社名 : アライアンサーズ株式会社(東京都新宿区)
設立 : 2018年11月1日
事業内容: ・終活コンシェルジュ(高齢者の皆様やそのご家族の終活相談)
・お葬式業務(老人ホーム葬・おひとり葬)
・高齢者向けの生活サポート事業
・シニア住宅紹介
・少額保険取扱業務
・高齢者事業コンサルタント業務
TEL : 03-6260-8637 (平日9:00~18:00)
HP : https://alliancersjp.com/
ログインするとメディアの方限定で公開されている
お問い合わせ先や情報がご覧いただけます
添付画像・資料
添付画像をまとめてダウンロード
企業情報
| 企業名 | アライアンサーズ株式会社 |
|---|---|
| 代表者名 | 久保 わたる |
| 業種 | その他サービス |
コラム
アライアンサーズ株式会社の
関連プレスリリース
-
「もう、あきらめなくていい。」難病・要介護者のための住み替え相談をアライアンサーズが年末年始に無料開催。老人ホーム以外の“第三の選択肢”で
2025年12月26日 18時
-
「もう限界!」に寄り添う介護代行サービス『介護モウムリ』提供開始のお知らせ
2025年5月22日 13時
-
「85歳不動産」高齢者歓迎物件の提供で安心の賃貸運営をサポート!大家様募集
2025年5月2日 15時 Cユーザー投稿
-
法定後見の利益増大!アライアンサーズ株式会社が無料コンサルティングを提供開始
2025年3月13日 17時 Cユーザー投稿
アライアンサーズ株式会社の
関連プレスリリースをもっと見る









