間取り作成を、もっと手軽に。iPad専用3D間取りアプリ「SpeedPlanner(スピードプランナー)」App Storeにて公開中!
間取りや外観の初回打ち合わせツール、現場調査ツールとして最適な「SpeedPlanner(スピードプランナー)」」は初期費用0円、さらに1ヶ月無料体験を実施中です。サポートやセミナーも充実し、YouTubeでもマニュアルを公開しています。
オーセブン株式会社(本社:さいたま市中央区、大阪支社:大阪市淀川区、代表取締役社長:七海 崇)は、iPad専用3D間取りアプリ「SpeedPlanner(スピードプランナー)」を、2019年10月よりApp Storeにて公開いたしました。
2019年11月13日〜15日に東京ビッグサイトにて開催された「Japan Home & Building Show2019」へ出展したところ、来場者の皆様から高い評価をいただきました。また、本社にて開催するセミナーも参加者様からご好評をいただいております。
2020年1月28日(火)にはセミナー「使ってみようSpeed Planner」を開催いたします。ぜひご参加ください。
■セミナー詳細:https://speedplanner.biz/?itemid=116&catid=1
【SpeedPlannerについて】
「SpeedPlanner」は、新築やリフォームなどの初回打合わせに最適なツールです。お客様の要望をヒヤリングしながら空間設計をその場でビジュアルに表現、共有できます。意思の疎通と、打合わせの効率がUPします。制作データはクラウドを経由した共有が可能です。
■サービス概要ページ:https://lp.speedplanner.biz/
■アプリサポートページ:https://speedplanner.biz/
【特徴とお勧めの使い方】
1.間取り初回打合せツールとして
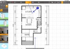
デジタルと手書きを融合した直感的な操作が可能です。間取りを描くと同時に3Dのビジュアルも作成できます。現場で打合せをしながら空間設計を描いて説明することで、施主の納得を引き出すことができます。打合せ内容をメモして見せることで、お互いの勘違いにも気づきやすくなります。
2.外観初回打合せツールとして
建物の外観イメージを作成できます。全方向からのパースを保存し、注釈や寸法、文字を書き足すことができます。予め何パターンから用意した外観図で打合せを進めることができます。また、スピーディに図面を作成できるので、打合せをしながらその場で空間のイメージをクライアントと共有できます。早い段階で意思の疎通ができ、打合せの効率がUPします。
3.現場調査ツールとして
建物の間取りデータに、現場写真と撮影場所を関連付けて保存することができます。撮影した現場写真は、注釈、寸法、手書きメモを加えることができ、リフォームの打合せ記録として利用できます。

【基本料金】
■初期費用0円
■月額1,500円
初めの一ヶ月間は無料でご利用いただけます。
※2019年9月現在。消費税や為替レートによって変動します。1ヶ月の無料期間終了後に継続される方は自動更新となります。解約される方は、アプリ内課金のキャンセルの手続きをお願いいたします。キャンセルされない場合は、自動更新となりますのでご注意ください。
【サポートについて】
スピードプランナーを快適により効果的に使っていただくためにいくつかのサポートをご用意しています。ぜひご活用ください。
1.訪問サポート
人数:インストラクター1名お客様1名まで
時間:13:00〜16:00(3h)
料金:55,000円(税込)
場所:事務所、ご自宅などご指定の場所に訪問致します。関東近郊以外の地域は別途交通費がかかります。
2.セミナールーム研修
人数:1社様マンツーマンお客様1名まで
時間:13:00〜16:00(3h)
料金:22,000円(税込)
場所:さいたま市 オーセブン本社 1Fセミナールーム
3.定期セミナー
毎月1回開催します。詳しくはホームページをご覧ください
人数:ご自由にご参加ください
時間:13:00〜16:00(3h)
料金:1名2,200円(税込)
場所:さいたま市 オーセブン本社 1Fセミナールーム
【今後のセミナー開催について】
アプリサポートページ(https://speedplanner.biz/)にて、セミナー開催日程をご案内しております。
■2020年1月開催:https://speedplanner.biz/?itemid=116&catid=1
■2020年2月開催:https://speedplanner.biz/?itemid=131&catid=1
■2020年3月開催:https://speedplanner.biz/?itemid=132&catid=1
■2020年4月開催:https://speedplanner.biz/?itemid=133&catid=1
【マニュアル】
アプリサポートページにてPDFマニュアルを、YouTubeにて動画マニュアルを公開しております。ぜひご活用ください。
■PDFマニュアル:https://speedplanner.biz/index.php?catid=47&blogid=4
■動画マニュアル:https://www.youtube.com/channel/UCrHI-T9raVu_oPmnEmtV0bg
【アプリ概要】
■ アプリ名:SpeedPlanner(スピードプランナー)
■アプリダウンロード:AppStore https://apps.apple.com/app/id1478683822
■ 価格:1,500円(税込)/月(一ヶ月間は無料で使用できます)
■SpeedPlannerの推奨スペック(機種)
推奨システムバージョン iOS13/対応システムバージョン iOS12以降
※Apple Pencilが使用出来る機種に限ります。Apple Pencilについては、第1世代、第2世代で使用できるiPadが異なりますので、購入時にお気を付けください。(2019年10月現在)
第1世代のApple Pencil対応機種:iPad Air(第3世代)/iPad mini(第5世代)/iPad Pro(10.5インチ)/iPad(第7世代)/iPad(第6世代)/iPad Pro(12.9インチ)(第2世代)/iPad Pro(12.9インチ)(第1世代)
第2世代のApple Pencil対応機種:iPad Pro(12.9インチ)(第3世代)/iPad Pro(11インチ)/iPad Pro(9.7インチ)
【オーセブン株式会社 概要】
■代表取締役社長:七海 崇
■本社所在地:埼玉県さいたま市中央区本町西6丁目4番14 07デジタルスタジオ
■設立:1995年2月
■URL:https://www.o-seven.co.jp/
■事業内容:
(1)クラウド連動型/外構・造園・設計専用3次元CADの販売事業
(2)パソコン通信ネットワークによるカラーCAD図面代行サービス
(3)クラウド連動型CADのシステムおよびソフト開発事業
(4)住宅関連産業に向けて情報技術の開発・販売事業
(5)クラウド通信ネットワーク・コンサルティング事業
(6)住宅・EX・外構・造園業界の情報ポータルサイト「e-toko」運営
(7)リフォームビジネスの次世代ツール・サイト「ReformClick」運営
ログインするとメディアの方限定で公開されている
お問い合わせ先や情報がご覧いただけます
添付画像・資料
添付画像をまとめてダウンロード
企業情報
| 企業名 | オーセブン株式会社 |
|---|---|
| 代表者名 | 七海 崇 |
| 業種 | コンピュータ・通信機器 |