株式会社Rバンクは、文京区目白台エリアにてDIYできる賃貸戸建のコーディネートを行いました。11月29日(火)に完成見学会を行います。
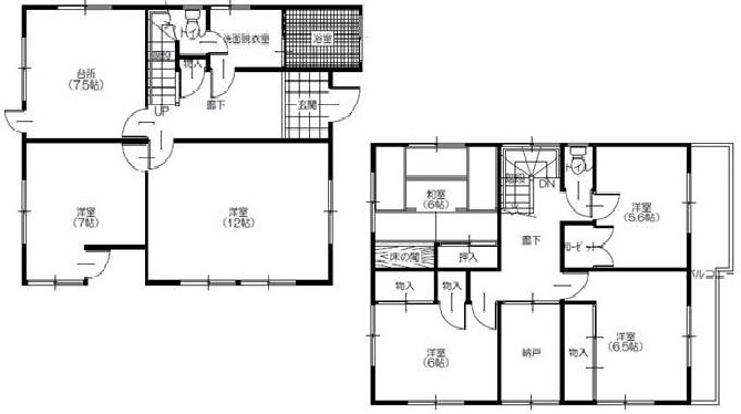
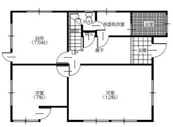
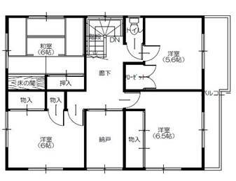
株式会社Rバンクは「戸建を丸ごとDIY化する」をコンセプトに、文京区目白台エリアにてDIYできる賃貸戸建のコーディネートを行いました。キッチン等の改装費用がかかる水回り部分は改修を行い、各居室の壁は下地材(ブラスターボード)で仕上げ、床材も下地材(構造用合板)の状態で借りて頂く新しいスタイルの賃貸住宅です。つきましては、11月29日(火)に完成見学会を行います。
株式会社Rバンク(本社:東京都渋谷区渋谷3-8-12/代表:森村泰明)は、4年前から
DIYできる賃貸(改装可能賃貸)の企画コーディネートを行っています。DIYP(改装可能賃貸募集サイト)との業務提携や、DIYできる(改装可能賃貸)専門のサイトも開設し、着実に企画案件を増やしております。
空き家問題は国や地方行政でも対策を講じようとしていますが、供給側の増加に反して需要は下がり、特に古い物件は対策が難しい状況です。2033年には3分の1が空き家になると言われている昨今、古い戸建ての有効活用の手段の一つの提案として、本プロジェクトをリリースさせて頂きます。
DIYできる賃貸(改装可能賃貸)とは、一定の条件を元に、入居者が賃貸物件の内装を改装する
事を貸主が了承し、改装範囲については、原状回復義務の範囲から除外する貸し方をする
物件です。
日本の賃貸物件は、基本的には、釘一つ打つことも禁止されています。 賃貸物件に住みながら、自分の心地よい住処を作ることがDIY物件の大きな魅力となります。世帯の分散化が進む今後、持ち家志向ではない方々にとって、所有しなくても改装できる物件のニーズは高まるのではないかと思います。貸主としては、リフォーム費用を最小限に抑えることができるメリットがあります。
本プロジェクトは、「戸建を丸ごとDIY化する」をコンセプトに、キッチン等の改装費用がかかる
水回り部分は改修を行い、各居室の床、壁などは最小限のリフォームに留めてあります。
Rバンクの内装を下地材のまま引き渡す改装可能賃貸プロジェクトでは、募集開始から契約まで1ヶ月以内で成約に至っており、同築年数の周辺賃貸物件と比較しても、1割~2割高い賃料で成約しています。また、改装可能賃貸に入居した方は、その住まいに愛着が生まれ、長く住んで頂けるという傾向があります。
■日本の賃貸市場
賃貸住宅は、都心部においても空室率は年々高まっています。相続税対策を含めた土地活用
として、賃貸住宅の供給戸数は活発に行われていますが、賃貸住宅に住むユーザーの数は減少かつ高齢化しています。
このような時代背景の中、1ROOM、1Kの単身者向け賃貸住宅に傾倒した日本の賃貸市場に
おいては、競争による賃料の下落が著しい状況です。
Rバンクでは、今後激化する賃貸住宅市場の競争において、ユーザーに必要とされる切り口を
変えた賃貸物件の企画を作り出したいと考えています。
1.WEBサイトの紹介
カスタム・改装・DIYできる賃貸 http://r-diy-house.com/
before → after
2.プロジェクト紹介
本プロジェクトは、築約42年の物件をリノベーションし、
かつ入居者が改装できるという、
「戸建をまるごとDIY化する」プロジェクトです。
リノベーションPoint 改装可能範囲
■ キッチン 新設 ■ 設備・構造に関わる部分以外
■ トイレ 新設 ■ 壁・床・棚設置・間仕切り設置
■ 洗面台 新設 (申請済みの改装は原状回復対象外)
■ 壁 塗装
階段、建具など既存の素材を利用の部分もあり、
新旧の素材の混じり合いが生み出すデザインをお楽しみ頂けます。
3.完成見学会のご案内
日時 平成28年11月29日(火) 13:00~15:00
場所 東京都文京区
※入室は予約制になります。尚、入居者のプライバシー保護のため、詳細の住所については、ご予約頂いた方にのみお伝えしておりますのでご了承ください。
ログインするとメディアの方限定で公開されている
お問い合わせ先や情報がご覧いただけます
添付画像・資料
添付画像をまとめてダウンロード
企業情報
| 企業名 | 株式会社Rバンク |
|---|---|
| 代表者名 | 森 利明 |
| 業種 | 不動産 |
コラム
株式会社Rバンクの
関連プレスリリース
-
築古戸建て借上げ改装 株式会社Rバンクが提案する不動産再生プロジェクト
2022年2月20日 10時
-
Rバンクが提案する不動産再生プロジェクト!関わり、支え、育て合う。「hagu組む東戸塚」オープン!
2019年2月18日 12時
-
シェアハウス2物件オープン!新築マンション最上階「ryougoku-share 天空の中庭」 戸建再生シェアハウス 「Aliceのいえurawa」
2019年2月18日 12時
-
1棟オフィスビルをシェアハウスに改装 Rバンクが提案する不動産再生プロジェクト 「練馬okeikoちゃん家」オープン!
2019年1月12日 14時
株式会社Rバンクの
関連プレスリリースをもっと見る




