メディアエンジン、「障害者と健常者が一緒に暮らす」がテーマのシェアハウス「MAZARIBA」を神奈川・川崎市にオープン

映像、Webを中心にしたコンテンツプロデュースを手がけるメディアエンジン 有限会社(東京・北区)は、新形態のシェアハウスとして「障害者と健常者(一般の人)が一緒に暮らす」 シェアハウスを2018年11月1日(木)からオープンします https://mazariba.jp/

2018年10月26日

報道機関各位 プレスリリース

━━━━━━━━━━━━━━━━━━━━━━━━━━━━━━━━━━━━

メディアエンジン、「障害者と健常者が一緒に暮らす」がテーマの

シェアハウス「MAZARIBA」を神奈川・川崎市にオープン IoTなども活用

━━━━━━━━━━━━━━━━━━━━━━━━━━━━━━━━━━━━

映像、Webを中心にしたコンテンツプロデュースを手がけるメディアエンジン

有限会社(東京・北区)は、新形態のシェアハウスとして「障害者と健常者(一般の人)が一緒に暮らす」

シェアハウスを2018年11月1日(木)からオープンします https://mazariba.jp/

 

■■■■ シェアハウス「MAZARIBA」のコンセプト ■■■■

2020年東京オリンピック・パラリンピックの開催が近づき、障害を持つ人へのサポート体制の構築や

バリアフリー工事が急ピッチで進んでいます。しかし、障害があることを理由に、アパートなどの

賃貸物件への入居を断られる人が沢山いることをご存知でしょうか?

 

収入がなくて家賃が払えないのなら理解できますが、企業に勤めて1人で自活できる人であっても、

「耳が聴こえない」「身体に不自由がある」などを理由に、多くの障害者が入居を断られているのが

現状です。私はとあるキッカケでこの問題を知り、状況を変えたいと思いました。

 

調査していくうちに「耳の聴こえない人は非常ベルが鳴っても分からない。命にかかわる」などの

問題があり入居を断られることがわかってきましたが、これは他の障害を持つ人や、健常者と一緒に

住んでいれば、容易に解決できる問題です。

 

そこで障害者や障害者に関わる方々と検討を重ねたところ、障害者も入居できるシェアハウスがあれば

無理に支え合ったりしなくても、普通に一緒に生活しているだけでお互いにメリットがあることが

明確になってきました。しかし、同様のテーマのシェアハウスは(ほとんど)なく、自分たちで

設立する運びになりました。

 

このシェアハウスはIoTを活用して障害者と健常者がお互いに住みやすい家を目指して

実験的な取り組みを進めていきます。

その第一弾として、リンクデザイン株式会社と高村和志氏が現在開発中の無線LANを使った

在宅確認システムLivelynk(ライブリンク)を導入する予定です。

https://www.livelynk.jp/

 

なお、11月中はオープニング期間としてフリーレント(家賃無料)で入居する事ができます。

また、「MAZARIBA」は広いリビングやBBQなどもできる屋上があり、障害を持っていない人にとっても、

魅力的な物件になっています。

この「MAZARIBA」は営利で運営し、今後、10軒まで増やす予定です。

 

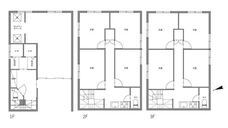
■■■■ 物件概要 ■■■■

【住所】神奈川県川崎市川崎区日ノ出1-9-14

    京急大師線「産業道路」駅 徒歩9分

【部屋】個室x6部屋+ドミトリー(2人部屋)x2部屋+LDK(兼イベントスペース)

    BBQなどのできるルーフバルコニーあり

【設備】大型テレビ、インターネット無線LAN、冷蔵庫、電子レンジ、炊飯器、

    トースター、洗濯機、シャワー、シェア自転車ほか

【家賃】1.5〜4.5万円+共益費(1万円) 共益費は電気、ガス、水道、ネット代を含む

    別途初期費用として契約手数料1万円、敷金0.5ヶ月分

    (11月中はフリーレントで家賃無料)

【開設】2018年11月1日(木)

【Web】 https://mazariba.jp/

 

■■■■ 無料見学会概要 ■■■■

物件のオープンに伴い、無料見学会を実施します。

下記日時以外にも個別に内見可能です

【日時】 2018年11月4,18,25(日) 13:30〜16:00

【参加方法】事前予約制,現地集合

【問合先】 TEL 03-6869-0268  uchida@mediaengine.jp (内田)

 

■■■■ メディアエンジン有限会社 内田勉のコメント ■■■■

2013年に最初の物件をオープンして以降、ずっとコンセプト型シェアハウスを

運営してきました。シェアハウスという場を使い世の中に変化を与えたいと

思っていたからです。

 

今回の「障害者と健常者(一般の人)が一緒に暮らす」というコンセプトは、

1年ほど前から準備を進めてきましたが、他に類がほとんどない

ユニークなコンセプトとして胸を張ることができると考えています。

 

さらに私達は、これを福祉ではなく営利事業として行います。

助成金をもらうと様々な制約が伴いますし、「障害を持っていても普通に暮らしたい」

という気持ちを叶えるために税金を使うのは、少し変だと思うからです。

そのかわり、近日中にクラウドファンディングを開始する予定です。

 

今回は物件や運営の習熟度の関係で「自活できる軽度の身体障害者」が対象です。

残念ながら介助の必要な方、車椅子の方、知的・精神障害の方は入居が難しい事を

予めご了承下さい。

 

最後になりますが、今回のオープンまでに協力いただいた数十名の方々については

感謝の気持ちでいっぱいです。ありがとうございます。これからも見守って下さい。

 

■■■■ メディアエンジン有限会社について ■■■■

2003年設立。在京キー局を中心に現在までに多数のTV番組(主に報道・

情報番組)やWebコンテンツのプロデュースを手がける。

都内に3軒、埼玉に1軒のシェアハウスと、大分県別府市でフリースペースを

運営中

【本プレスリリースの問い合わせ先】

メディアエンジン有限会社 担当:内田勉 uchida@mediaengine.jp

TEL 03-6869-0268 FAX 03-6369-4248

URL: https://mediaengine.jp/



ログインするとメディアの方限定で公開されている
お問い合わせ先や情報がご覧いただけます

添付画像・資料

添付画像をまとめてダウンロード

企業情報

企業名 メディアエンジン有限会社
代表者名 内田勉
業種 新聞・出版・放送

コラム

    メディアエンジン有限会社の
    関連プレスリリース

    メディアエンジン有限会社の
    関連プレスリリースをもっと見る

    • クリックして、タイトル・URLをコピーします
    • facebook
    • line
    • このエントリーをはてなブックマークに追加

    プレスリリース詳細検索

    キーワード

    配信日(期間)

    年  月  日 〜 年  月 

    カテゴリ

    業界(ジャンル)

    地域